Căn hộ 3 phòng ngủ tại Tecco Diamond-Thiết kế bởi AQ8 Design

Hôm nay AQ8 gửi tới bạn một căn hộ mà chúng mình vừa hoàn thành. Một thiết kế chúng mình dành riêng cho những người thích sự đơn giản, gần gũi nhưng không kém phần tinh tế. AQ8 hy vọng đây là một nguồn cảm hứng cho căn hộ tương lai của gia đình bạn!
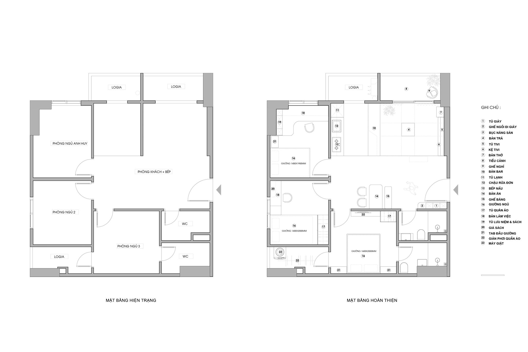
Thông tin về căn hộ. 
– Khách hàng: Anh Huy
– Căn hộ 3 phòng ngủ tại Tecco Diamond
– Thiết kế và thi công: AQ8
– Cung cấp decor: YD Decor
– Gạch ốp bếp: Mosaic Word
– Chụp ảnh: Abluebird Studio
Cảm ơn tất cả mọi người cùng chung tay với chúng mình thực hiện căn hộ lần này!

 

Công trình 3 phòng ngủ tại tecco diamond_thiết kế bởi AQ8
Công trình 3 phòng ngủ tại tecco diamond_thiết kế bởi AQ8

Công trình 3 phòng ngủ tại tecco diamond_thiết kế bởi AQ8
Công trình 3 phòng ngủ tại tecco diamond_Một số hình ảnh thi công
Công trình 3 phòng ngủ tại tecco diamond_thiết kế bởi AQ8
Công trình 3 phòng ngủ tại tecco diamond_thiết kế bởi AQ8
Công trình 3 phòng ngủ tại tecco diamond_thiết kế bởi AQ8
Công trình 3 phòng ngủ tại tecco diamond_thiết kế bởi AQ8
Công trình 3 phòng ngủ tại tecco diamond_thiết kế bởi AQ8
Công trình 3 phòng ngủ tại tecco diamond_thiết kế bởi AQ8
Công trình 3 phòng ngủ tại tecco diamond_thiết kế bởi AQ8
Công trình 3 phòng ngủ tại tecco diamond_thiết kế bởi AQ8
Công trình 3 phòng ngủ tại tecco diamond_thiết kế bởi AQ8
Công trình 3 phòng ngủ tại tecco diamond_thiết kế bởi AQ8
Công trình 3 phòng ngủ tại tecco diamond_thiết kế bởi AQ8
Công trình 3 phòng ngủ tại tecco diamond_thiết kế bởi AQ8
Công trình 3 phòng ngủ tại tecco diamond_thiết kế bởi AQ8
Công trình 3 phòng ngủ tại tecco diamond_thiết kế bởi AQ8
Công trình 3 phòng ngủ tại tecco diamond_thiết kế bởi AQ8
Công trình 3 phòng ngủ tại tecco diamond_thiết kế bởi AQ8

Công trình 3 phòng ngủ tại tecco diamond_thiết kế bởi AQ8
Công trình 3 phòng ngủ tại tecco diamond_thiết kế bởi AQ8
Công trình 3 phòng ngủ tại tecco diamond_thiết kế bởi AQ8
Công trình 3 phòng ngủ tại tecco diamond_thiết kế bởi AQ8
Công trình 3 phòng ngủ tại tecco diamond_thiết kế bởi AQ8
Công trình 3 phòng ngủ tại tecco diamond_thiết kế bởi AQ8
Công trình 3 phòng ngủ tại tecco diamond_thiết kế bởi AQ8
Công trình 3 phòng ngủ tại tecco diamond_thiết kế bởi AQ8
Công trình 3 phòng ngủ tại tecco diamond_thiết kế bởi AQ8
Công trình 3 phòng ngủ tại tecco diamond_thiết kế bởi AQ8
Công trình 3 phòng ngủ tại tecco diamond_thiết kế bởi AQ8
Công trình 3 phòng ngủ tại tecco diamond_thiết kế bởi AQ8
Công trình 3 phòng ngủ tại tecco diamond_thiết kế bởi AQ8
Công trình 3 phòng ngủ tại tecco diamond_thiết kế bởi AQ8

 

Công trình 3 phòng ngủ tại tecco diamond_thiết kế bởi AQ8
Công trình 3 phòng ngủ tại tecco diamond_thiết kế bởi AQ8
Công trình 3 phòng ngủ tại tecco diamond_thiết kế bởi AQ8
Công trình 3 phòng ngủ tại tecco diamond_thiết kế bởi AQ8
Công trình 3 phòng ngủ tại tecco diamond_thiết kế bởi AQ8
Công trình 3 phòng ngủ tại tecco diamond_thiết kế bởi AQ8
Công trình 3 phòng ngủ tại tecco diamond_thiết kế bởi AQ8
Công trình 3 phòng ngủ tại tecco diamond_thiết kế bởi AQ8
Công trình 3 phòng ngủ tại tecco diamond_thiết kế bởi AQ8
Công trình 3 phòng ngủ tại tecco diamond_thiết kế bởi AQ8
Công trình 3 phòng ngủ tại tecco diamond_thiết kế bởi AQ8
Công trình 3 phòng ngủ tại tecco diamond_thiết kế bởi AQ8
Công trình 3 phòng ngủ tại tecco diamond_thiết kế bởi AQ8
Công trình 3 phòng ngủ tại tecco diamond_thiết kế bởi AQ8
Công trình 3 phòng ngủ tại tecco diamond_thiết kế bởi AQ8
Công trình 3 phòng ngủ tại tecco diamond_thiết kế bởi AQ8
Công trình 3 phòng ngủ tại tecco diamond_thiết kế bởi AQ8
Công trình 3 phòng ngủ tại tecco diamond_thiết kế bởi
Thiết kế nội thất tốt nhất không phải bởi xu hướng mà là từ nhu cầu của bạn, ước mơ của bạn và là tất cả những thứ thuộc về bạn!
The best interior design is inspired not by trends but by your needs, your dreams, and the essence of all you are!
Xem quá trình thi công căn hộ tại:

Rất vui nếu mọi người theo dõi AQ8 trên.

►Fanpage: https://www.facebook.com/aq8studio/

►Facebook cá nhân: https://www.facebook.com/Linh.AQ8/

►Website: https://aq8.vn

►Instagram: https://www.instagram.com/aq8design_v…

►Pinterest: https://www.pinterest.com/AQ8VietNam/…

Liên hệ với AQ8

►Gmail: aq8vietnam@gmail.com

►Hotline: 0389405480 / 0833878386 [KTS Nguyễn Văn Linh]

Cảm ơn mọi người !

Hôm nay chúng mình gửi tới bạn căn hộ 3 phòng ngủ tại tecco diamond. Một thiết kế chúng mình dành riêng cho những người thích sự đơn giản, gần gũi những không kém phần tinh tế.

Thẻ: aq8 design / Công trình 3 phòng ngủ tại tecco diamond / tecco diamond / thiết kế bởi AQ8