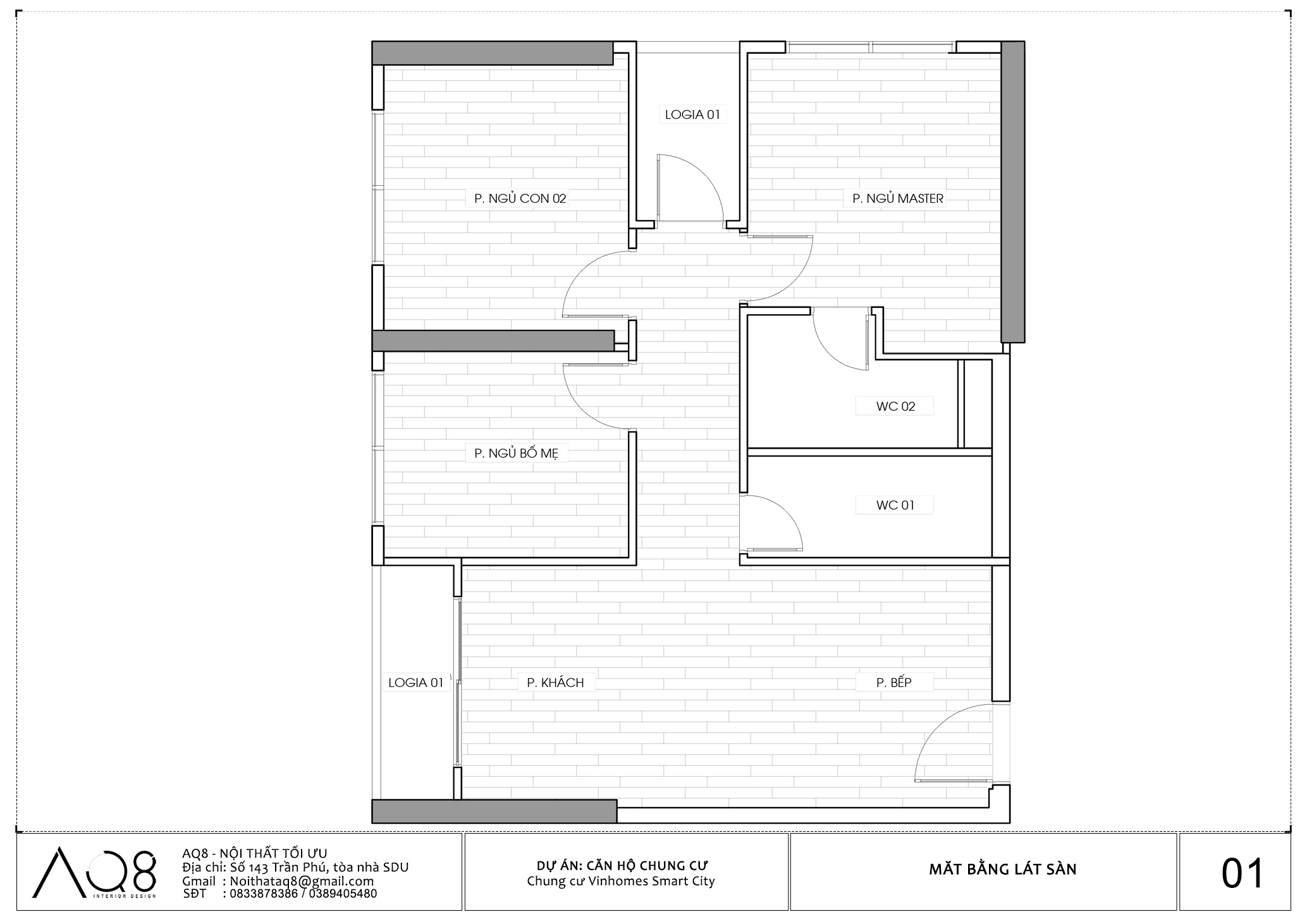
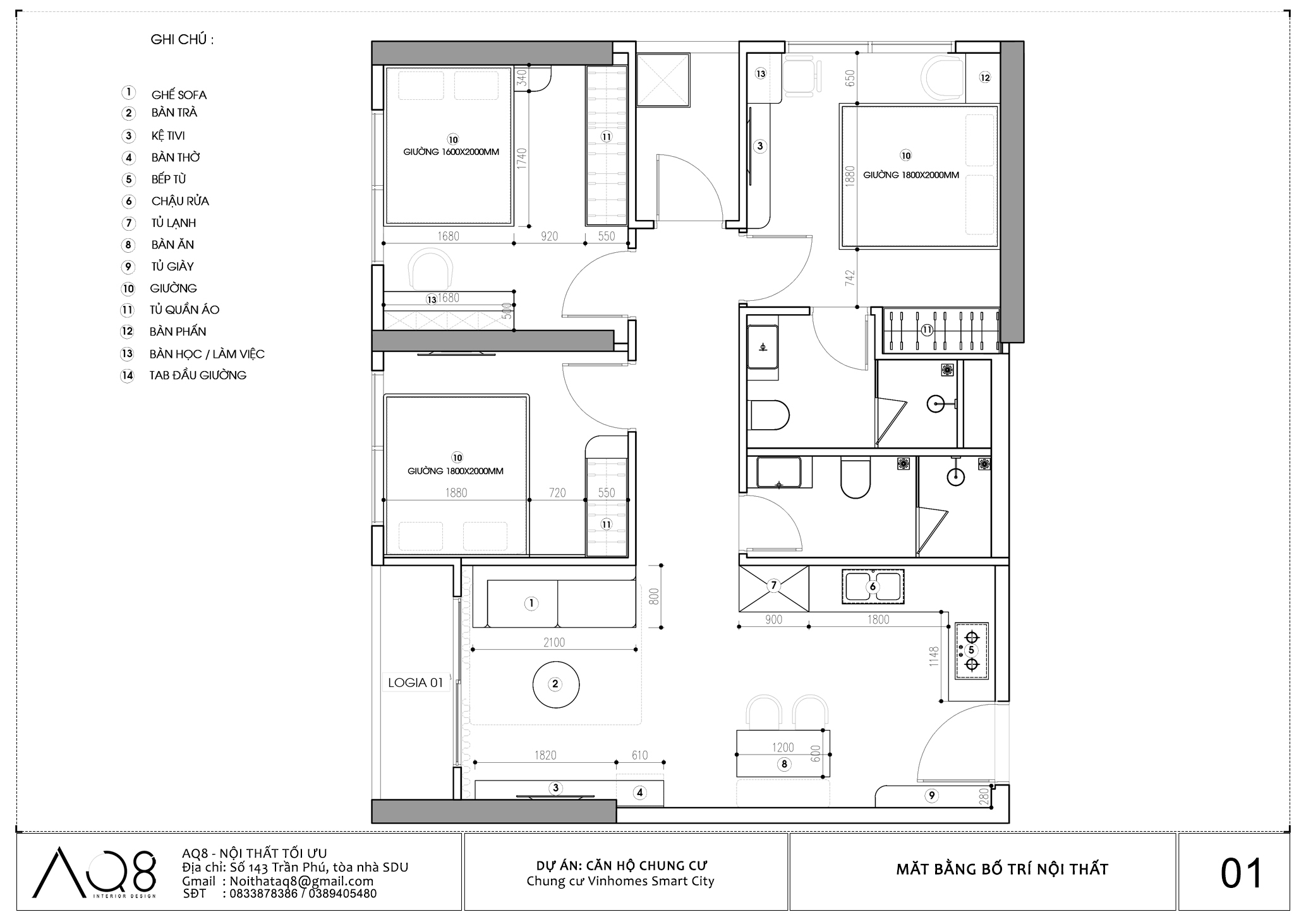
CĂN HỘ 3 PHÒNG NGỦ TẠI VINHOMES SMART CITY
Trong những thiết kế của AQ8 thì yếu tố cá nhân hóa, tính hiệu quả trong không gian sử dụng và trong hạn mức đầu tư phù hợp luôn được AQ8 đề cao hàng đầu.
► THÔNG TIN DỰ ÁN
Thông tin căn hộ: Căn hộ 3 phòng ngủ, Chung cư Vinhomes Smart City
Phong cách thiết kế: Phong cách tối giản, tối ưu về công năng sử dụng
Đơn vị Thiết kế & thi công: AQ8 Design Việt Nam



Rất vui nếu mọi người theo dõi AQ8 trên.
►Fanpage: https://www.facebook.com/aq8studio/
►Facebook cá nhân: https://www.facebook.com/Linh.AQ8/
►Website: https://aq8.vn
►Instagram: https://www.instagram.com/aq8design_v…
►Pinterest: https://www.pinterest.com/AQ8VietNam/…
Liên hệ với AQ8
►Gmail: aq8vietnam@gmail.com
►Hotline: 0389405480 / 0833878386 [KTS Nguyễn Văn Linh]
Cảm ơn mọi người !
CĂN HỘ 3 PHÒNG NGỦ TẠI VINHOMES SMART CITY Trong những thiết kế của AQ8 thì yếu tố cá nhân hóa, tính hiệu quả trong không gian sử dụng và trong hạn mức đầu tư phù hợp luôn được AQ8 đề cao hàng đầu. ► THÔNG TIN DỰ ÁN Thông tin căn hộ: Căn hộ […]
