Nội thất căn hộ chung cư T&T Victoria Thành phố Vinh-Thiết kế bởi AQ8 Design
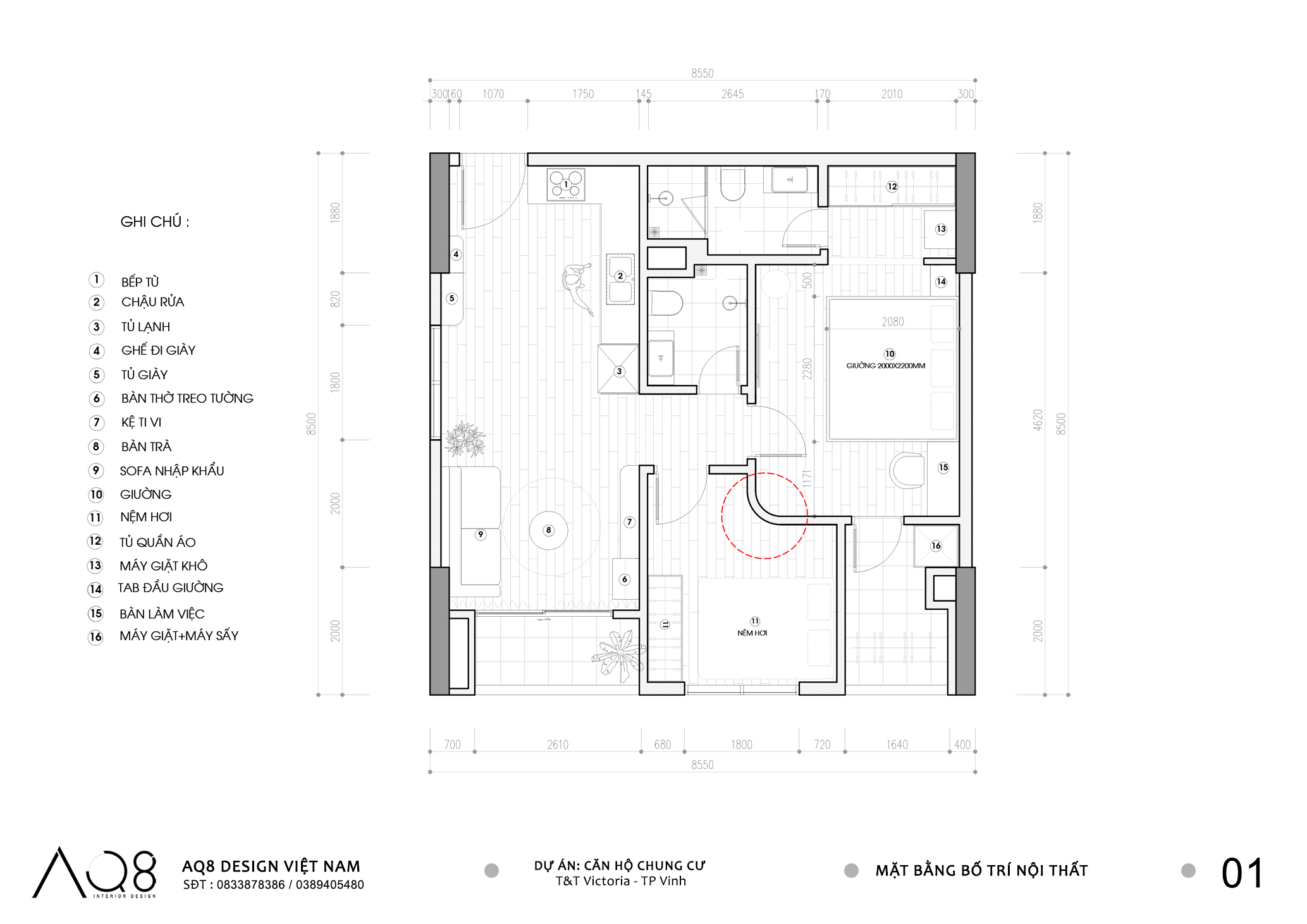
Chào các bạn, chúng mình rất vui khi bạn đang ở đây theo dõi những dự án chúng mình đã làm. Nếu đây là lần đầu tiên bạn tới website của AQ8 thì chúng mình làm về thiết kế và thi công kiến trúc nội thất. Căn hộ này chúng mình có duyên được thực hiện tại thành phố Vinh Nghệ An. Anh chị biết tới chúng mình thông qua một số dự án chúng mình đã làm trước đây. Quay lại căn hộ lần này thì đây là căn hộ chung cư T&T Victoria thành phố Vinh-Nghệ An. Căn hộ có diện tích khoảng 65 mét vuông với 2 phòng ngủ.
Hiện tại thì căn hộ được hoàn thiện tương đối tốt. Tuy nhiên thì về việc bố trí hệ thống điện vị trí thiết bị và vị trí đồ nội thất còn nhiều bất cập và chưa hợp lý. Thông qua quá trình trao đổi thì AQ8 có điều chỉnh một số điểm để căn hộ được phù hợp hơn với nhu cầu của anh chi.
Ngoài những yếu tố về công năng sử dụng hợp lý, đảm bảo về thẩm mỹ và cả tính cách của chủ nhà thì còn một số điểm đặc biệt mà chúng mình cần quan tâm là vấn đề về khí hậu.
Tại Nghệ An, mỗi gia đình có một lối sống và thói quen sinh hoạt khác nhau. Đối với căn hộ này thì anh chị có yêu cầu AQ8 bố trí chiếc giường 2,2 x 2m. Điều này đã tác động khá nhiều tới việc bố trí đồ nội thất trong phòng ngủ Master. Trong quá trình trao đổi thì AQ8 đã nhận thấy nhanh chị có tìm hiểu và tham khảo tháng nhiều về nội thất căn hộ, về phong cách màu sắc, cũng như là chất liệu,… Điều này thực sự tốt để AQ8 nắm bắt được tâm lý và định hình mong muốn của gia chủ.
Gia đình anh chị có bốn người, tuy nhiên hai bé còn khá nhỏ nên phòng Master chính là phòng ngủ chung. Anh chị chia sẻ rằng là rất thích phong cách thiết kế của chúng mình: tối giản hiện đại nhưng lại gần gũi. Căn hộ này anh chị hướng tới một thiết kế hiện đại sử dụng gam màu tối làm chủ đạo. Hiện tại thì căn hộ đang trong giai đoạn thiết kế và chúng mình sẽ thi công căn hộ khi hoàn thiện thiết kế 3D và số kỹ thuật.
AQ8 mong rằng một số hình ảnh thiết kế dưới đây sẽ giúp bạn hình dung rõ hơn về căn hộ tương lai và cũng là một phương án để bạn tham khảo cho tổ ấm của mình. Nếu các bạn đang có nhu cầu thiết kế và thi công nội ngoại thất thì đừng ngại trò chuyện với AQ8 nhé. Chúng mình rất vui khi được tư vấn và giải đáp những thắc mắc liên quan tới nhà ở. Ngoài ra các bạn có thể xem thêm các công trình chúng mình đã làm tại kênh Youtube của AQ8.
Cảm ơn các bạn đã theo dõi và đồng hành cùng chúng mình !










Hiện tại thì căn hộ đang trong giai đoạn thiết kế và chúng mình sẽ thi công căn hộ khi hoàn thiện thiết kế 3D và số kỹ thuật.
Rất vui nếu mọi người theo dõi AQ8 trên.
►Fanpage: https://www.facebook.com/aq8studio/
►Facebook cá nhân: https://www.facebook.com/Linh.AQ8/
►Website: https://aq8.vn
►Instagram: https://www.instagram.com/aq8design_v…
►Pinterest: https://www.pinterest.com/AQ8VietNam/…
Liên hệ với AQ8
►Gmail: aq8vietnam@gmail.com
►Hotline: 0389405480 / 0833878386 [KTS Nguyễn Văn Linh]
Cảm ơn mọi người !
Nội thất căn hộ chung cư T&T Victoria Thành phố Vinh-Thiết kế bởi AQ8 Design Chào các bạn, chúng mình rất vui khi bạn đang ở đây theo dõi những dự án chúng mình đã làm. Nếu đây là lần đầu tiên bạn tới website của AQ8 thì chúng mình làm về thiết kế và […]
